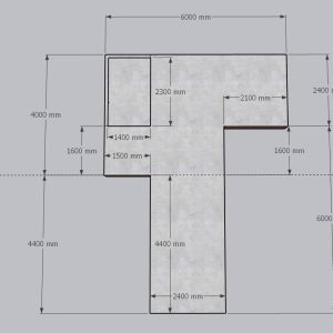
Kích thước tổng thể nhà 60,5m vuông
móng xây gạch tường 10 (cao 0,4m) để nguyên gạch khô làm đẹp viền và không trát vữa
bể phốt 1m3 loại bồn nhựa đúc sẵn Đại Thành
Phòng vệ sinh đã bao gồm thiết bị vệ sinh ( bồn cầu , lavabo, vòi sen tắm , gương soi)
sân thượng có lang can lách gạch
Lưu ý: giá trên chưa bao gồm chi phí nội thất như tủ bếp , tủ quần áo, ghế sofa , điều hòa bình nóng lạnh……


































































