Tên công trình: NHÀ LẮP GHÉP KHUNG THÉP VÁCH AZ100 VÂN GỖ VÀ TẤM NANO
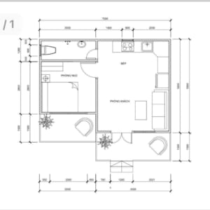
Kích thước tổng thể Nhà Lắp Ghép: RxDxC = D X R= 10 x 6m = ( 60 M2 )
– Gồm: 2 phòng ngủ, khách liền bếp, 1wc, ban công phía trước
Công năng sử dụng : Sẽ được thể hiện trên bản vẽ
– Kết cấu công trình:
– Tất cả các Vách trong nhà và trần ốp tấm nhựa Nano màu trắng
– Hệ thống cửa : Nhôm Xingfa Việt Nam và kính Cường lực 8mm
– Vách ngoài bằng hợp kim nhôm Az100 Vân Gạch màu xám
– Sàn cho Hiên lót gạch bông
– Sàn trong Nhà sử dụng sàn nhựa màu vân gỗ hèm khoá 4mm
– Nhà Vệ sinh đã có thiết bị như : Lavabo có tủ , Bồn Cầu , Tay sen , Gương
– Mái Tôn sóng Pu cách nhiệt 4.5 zem
– Hệ thống dây điện sử dụng: Cadivi
– Ổ cắm , công tắc : Sino
– Bóng đèn : MPE



























